Unser Haus
Dein Zuhause in den Bergen
Gemütlich. Vielseitig. Mit fairen Konditionen.
Die Faultierfarm in Kappl ist das perfekte Haus für Kinder-, Jugend- und Familienfreizeiten sowie Bildungsreisen. Mit ihrer gemütlichen Atmosphäre und fairen Preisen bietet sie beste Bedingungen für Gruppen, die gemeinsam Zeit in den Bergen verbringen möchten. Im Winter locken das Skigebiet Kappl direkt vor der Tür und Ischgl in nur 8 km Entfernung. Im Sommer lädt das malerische Paznauntal zum Wandern ein, auch Kletterer, Mountainbiker und Raftingfans kommen hier auf ihre Kosten.
Unser urgemütliches Haus ist ideal für Gruppen, die gerne zusammen Ski fahren, kochen, spielen und lachen – ebenso wie für alle, die Ruhe und Besinnung in der Natur suchen.
Ausstattung
Die Faultierfarm bietet Platz für bis zu 30 Personen in Zimmern verschiedener Größe (1–6 Betten). Sie verfügt über flächendeckendes WLAN, eine professionell ausgestattete Küche, einen großen Aufenthaltsraum mit Balkon sowie einen Freizeitraum mit Profi-Tischkicker, verschiedenen Spielen und einer kleinen Bibliothek. Im Sommer wird das Angebot ergänzt durch 2 große Terrassen vor und hinter dem Haus. Es bestehen Parkmöglichkeiten für max. sechs Fahrzeuge
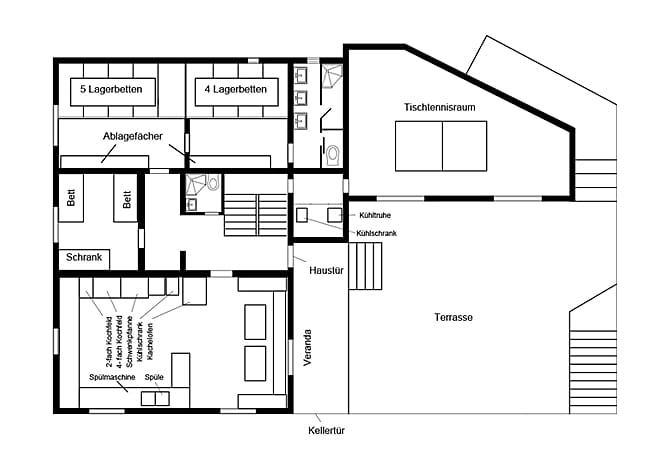
Zimmeraufteilung
Hier können Sie die Zimmeraufteilung der einzelnen Stockwerke einsehen und sich durch einen Klick auf „Grundriss“ einen Überblick verschaffen.
- Küche mit Esstisch für 10 Personen
- 1 Zimmer, 2 Betten
- 1 Zimmer, 4 Betten
- 1 Zimmer, 5 Betten mit Dusche + Toilette
- 4- und 5-Bett-Zimmer sind durch eine Schiebetür verbunden
- weitere Dusche + Toilette (Zugang über Flur)
- Freizeitraum mit Kicker und Musikanlage
- Terrasse vor dem Haus
- Terrasse hinter dem Haus mit Sitzmöglichkeiten
- UAufenthaltsraum (35 qm). großer Balkon, kleine Bibliothek
- 1 Zimmer, 1 Bett
- 1 Zimmer, 4 Betten
- 1 Zimmer, 5 Betten mit Dusche + Toilette
- weitere Dusche + Toilette (Zugang über Flur)
- 1 Zimmer, 5 Betten
- 1 Zimmer, 6 Betten
- Dusche + Toilette (Zugang über Flur)
- Wohnraum mit Miniküche (Durchgangszimmer) mit ausziehbarer
Schlafcouch (Breite 1,40m) - Schlafraum , 2 Betten
- Dusche, Waschbecken und WC
- Vorraum mit Abstellmöglichkeiten für Skier
- 1 Dusche
- 1 Toilette
- Trockenraum für Ski-Ausrüstung
- 1 Lagerraum
- 1 Raum mit Brennholz
- nser HausElektroherd mit 6 Platten
- Backofen
- Große festinstallierte Profi-Kipp-Pfanne
- Geräumiger Kühlschrank
- Gefriertruhe (im Vorratsraum im Keller)
- Großzügige Ausstattung mit Töpfen, Pfannen, Schüsseln, etc. in verschiedenen Größen
- Brotschneidemaschine
- 2 Kaffeemaschinen
- 2 Wasserkocher
- Mikrowelle
Kleiner Rundgang? Schauen Sie mal rein.










Die Heilig-Kreuz-Kapelle


Nur etwa 10 Gehminuten oberhalb der Faultierfarm liegt die malerische Heilig-Kreuz Kapelle mit Platz für 30 Personen. Sie bietet einen ästhetisch schönen Raum für Gottesdienste, Stille und Besinnung. Daher eignet sich unser Haus auch besonders für Besinnungstage, Exerzitien, Konfirmations- und Firmvorbereitungen sowie für Ministrantengruppen.
Wichtiges vor Ort
Bäcker
Bäckerei-Cafe Wechner
Tel.: +43 (0) 5445 6239
Nr. 300
A-6555 Kappl
Lieferung möglich
Lebensmittel
Spar Kleinheinz
Tel.: +43 (0) 5445 6256-0
Nr. 519
A-6555 Kappl
Großeinkäufe
Eurogast Grissemann
Tel.: +43 (0) 5442 6999-0
Hauptstrasse 150
A-6511 Zams
Medizinische Versorgung
Arzt und Apotheke
Dr. Jehle
Tel.: +43 (0) 5445 6230
A-6555 Kappl-Dorf
Zahnarzt
Dr. Robert Walch
Tel.: +43 (0) 5445 8460
A-6553 See
Krankenhaus
St. Vincenz
Tel.: +43 (0) 5442 6000
Sanatoriumsstraße 43
A-6511 Zams